Portfolio 2023 Residential Drafting Projects
Permit-approved residential drafting projects completed in 2023, including
townhomes, custom homes, and interior remodels
across Oregon.
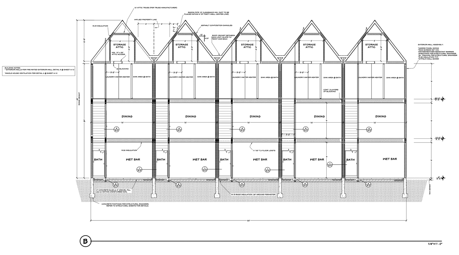
Lot 8 Townhomes – Portland, Oregon
The Lot 8 Townhome Project represents a thoughtfully planned infill development at the intersection of N Gantenbein Avenue and N Vancouver Avenue in Portland, Oregon. Five attached townhome units designed for density, efficiency, and neighborhood compatibility. Focus on compact footprint, shared access, and pedestrian-friendly frontages. No off-street parking provided; relies on street parking and transit-accessible urban context.
PERMIT #: 2024-011329-000-00-RS
Hill Residence – Clackamas County, Oregon
Architectural section cut of the Hill Residence, a 2023 custom single-family home designed for Mr. Hill. Emphasizes spatial continuity, proportional harmony, and connection to the site. Includes site plan, first- and second-level floor plans, exterior elevations, foundation plan, upper floor framing plan, roof framing plan, sections, and construction details. Structural engineering coordinated with architectural drawings.
Jurisdiction: Clackamas County Building
Interior Remodel – 9940 N Ivanhoe St, Portland, OR
Interior remodel project with BDS Red Seal approval for 9940 N Ivanhoe Street. Scope included structural adjustments and beam integration in the kitchen area to allow an updated open layout. All work fully code-compliant with residential permitting standards.
PERMIT #: View Permit Records



