PORTFOLIO
📐 Residential Drafting Portfolio – Online Permit-Ready CAD Plans
Welcome to my Residential Drafting Portfolio. I’m Luis, a professional draftsman with over 20 years of experience. For the past 7 years, I’ve offered 100% remote CAD drafting services, helping clients across Oregon, Washington, and beyond obtain permit-ready residential plans efficiently.
Because I work remotely, projects move faster and stay organized. As a result, clients avoid unnecessary meetings and delays.
🏠 What I Draft
I produce complete drawing sets for residential permitting. Each set follows local code requirements and is prepared for smooth city review. Every project is tailored to the scope and local jurisdiction.
Typical deliverables include:
📄 Site plans · ADUs · 📐 Floor plans · 🧱 Foundation & framing plans · 🏗️ Building sections & details · 🏘️ Exterior elevations · 💡 Electrical plans and more
📍 Areas I Serve
📌 I work with clients throughout Oregon and Washington. 🌎 My services also extend beyond the Pacific Northwest. 💻 Because everything is digital, location does not limit collaboration.
Common service areas include:
📍 Portland, Gresham, and Tigard
📍 Washington County and Clackamas County
📍 Forest Grove, Hillsboro, and Beaverton
📍 Marion County and Vancouver, WA
🌎 California and most U.S. regions
🤝 Portfolio Overview
📐 Explore completed drafting projects, including ADUs, garages, new homes, additions, porch extensions, and light commercial work. Each set emphasizes clear layouts and code compliance, making review and construction straightforward.
Projects are organized by year for easy reference:

Quiroz Driveway in SE Portland, designed by Luis F. Miramontes CAD Services for house construction and design plan in 2013
PROJECT DESCRIPTION: ADD SECOND CURB CUT AND DRIVEWAY
PERMIT# 2012-181095-000-00-ZP
The Quiroz Driveway in SE Portland, Oregon, involved adding a secondary curb to allow access to a new driveway. I obtained the necessary permit for construction from the Bureau of Development Services (BDS) of the City of Portland.
I worked diligently to design the Site Plan, which included the proposed two curb cuts and the driveway with parking space. The Site Plan had to be reviewed and revised by the Portland Bureau of Transportation (PBOT) to ensure compliance with their regulations.
With my expertise in house construction design plans, I was able to meet the client’s needs while adhering to the City’s requirements.
If you’re looking for professional and reliable drafting services for your house construction design plan or any type of residential project. I’m here to help you achieve it, get in touch.
Exterior view of the Diaz Home Renovation in SE Portland, showcasing the detailed and accurate construction design plan created by Luis F. Miramontes CAD Services for home remodeling in 2013
PROJECT DESCRIPTION: SECOND STORY ADDITION FOR THREE BEDROOMS AND A SECOND BATHROOM. EXPAND FOOTPRINT OF FIRST FLOOR ON SOUTH AND NORTH SIDES. EXPAND KITCHEN, BATHROOM AND UTILITY ROOM. NEW EXTERIOR COVERED PORCH ON FRONT ELEVATION. REMOVE CARPORT.
PERMIT # 2013-164675-000-00-RS

I pride myself on providing detailed and accurate house construction design plans that are customizable and professional. For the Diaz Home Addition in SE Portland, I expanded the footprint of the first floor on both the south and north sides, as well as the kitchen, bathroom, and utility room. I also added a second story for three bedrooms and a second bathroom, and a new exterior covered porch on the front elevation while removing the carport.
For this house construction design plans, I include all necessary drafting sheets, such as Site Plan, Existing and Proposed Floor Plans, Foundation Plan, Framing Plan, Sections, Details, and Exterior Elevations.
The construction project for Mr. Federico Diaz’s home in SE Portland, Oregon was permitted by the Building Development Bureau of the City of Portland. I personally expedited the permit for this project.

Existing garage to be converted into Bedroom #3, as seen in the Magadan House Construction Design Plan section A
PROJECT DESCRIPTION: SECOND STORY ADDITION FOR THREE BEDROOMS AND A SECOND BATHROOM. EXPAND FOOTPRINT OF FIRST FLOOR ON SOUTH AND NORTH SIDES. EXPAND KITCHEN, BATHROOM AND UTILITY ROOM. NEW EXTERIOR COVERED PORCH ON FRONT ELEVATION. REMOVE CARPORT.
PERMIT # 2013-164675-000-00-RS
In 2013, I designed and expedited the permitting process for a transformative home remodel at the Magadan House. This project involved converting the existing garage into a new bedroom, as detailed in Section A of the Construction Design Plan. The project also included a second-story addition, adding three bedrooms and a second bathroom, as well as expanding the footprint of the first floor on both the south and north sides. Additional updates included expanding the kitchen, bathroom, and utility room, along with the addition of a new exterior covered porch on the front elevation and the removal of the existing carport.

Exterior Elevations for the Holzmann Two-Story Home Addition in NE Portland, designed by Luis F. Miramontes Online Drafting Service USA in 2014.
PROJECT DESCRIPTION: TWO STORY ADDITION TO REAR OF EXISTING DWELLING TO CREATE NEW KITCHEN AND MASTER BEDROOM AND BATHROOM. REMODEL EXISTING POWDER ROOM AND 2ND FLOOR BATHROOM. CREATE BASMENT BEDROOM WITH EGRESS WINDOW, AND NEW BASEMENT BATHROOM.
PERMIT # 2014-161821-000-00-RS.
Looking to enhance your living space with a stunning home addition project in Portland, Oregon, or anywhere in the USA? My online drafting services in the USA provide detailed and accurate home-building plans for all residential construction projects, like in the Holzman Home Addition.
The house construction design plans for the Holzman Home Addition in NE Portland were designed with needs in mind. I made sure that every aspect of the project was tailored to meet specific requirements. The project’s scope was to add a new kitchen on the main floor and a master bedroom on the upper. The existing spaces adjacent to the new structure had to be remodeled. The house went into a major addition and remodel.
I also created a basement bedroom with an egress window and a new basement bathroom, ensuring that every inch of the home was optimized for comfortable and stylish living. The project was permitted for construction in 2014 by the Bureau of Development Services (BDS) of the City of Portland, I myself expedited the building permit for this project.
My comprehensive home building plans services include all the drafting sheets you need for a successful project, from site plans and existing and proposed floor plans to foundation plans, framing plans, sections, details, and exterior elevations. I respond to checksheets for plan examiner changes, ensuring that your project goes smoothly from start to finish and gets approved for construction.
Site plan for the Columbia-Inn Bathrooms Renovation project in Astoria, Oregon approved for construction in 2014. The plan includes detailed drafting sheets for the existing and proposed floor plans, sections, details, and exterior elevations.
If you’re looking for professional and reliable online drafting services in the USA, look no further than me, Luis F. Miramontes. This is the Columbia-Inn Hotel bathroom renovation project in Astoria, Oregon, approved for construction in 2014.
The scope of the project was to renovate 22 hotel bathrooms, replace plumbing fixtures such as toilets, hand-wash sinks, and shower/bath combos (for all 22 units), as well as renovating existing party walls in adjoining units (12 total). In addition, I drew the exterior elevations with 22 new windows to enhance the hotel’s exterior facades.

As an expert home building plans draftsman, I ensured that the plans included all the necessary drafting sheets to secure the building permit from the Building Department of the City of Astoria, including the Site Plan, Existing and Proposed Floor Plans, Sections, Details, and Exterior Elevations. I pride myself on providing detailed and accurate home-building plans that are also customizable to meet the specific needs of each project.
I understand the importance of timely delivery, and I work hard to ensure that my comprehensive home-building plans services are delivered on schedule. As an online home building plans service provider, I am committed to offering affordable and personalized services to all my clients.
When you work with me, you can be confident that your bathroom renovation plans, or any other type of renovation plans, will be completed to your satisfaction. I also respond to checksheets for plan examiner changes to ensure that your project meets all the necessary codes and regulations, and obviously, the approval for construction.
Have a custom bathroom renovation project and need plans? can you work online with me? Get in touch, my online service is simple and convenient.

El Campesino Food Market Site Plan approved for construction in Cornelius Oregon, USA. Drafted by Luis F. Miramontes Online Drafting Service USA in 2014.
During my early years of practice in the home renovation drafting service field, I was thrilled to work at the “Campesino Food Market” in Cornelius Oregon. The project involved renovating the existing structure by adding a separation wall that created a kitchen space. The kitchen space was to be used to serve food for human consumption with “to-go-only” conditions while maintaining the existing food market and groceries department. Since the project was classified as a “Light Commercial” per the zoning code, I worked closely with my clients to ensure that all requirements were met for approval.
The drafting services for this project included creating detailed and accurate plans, including a Site Plan, Existing and Proposed Floor Plans, Sections, and Details. I offer customizable, professional, and personalized home-building plans at an affordable rate. As an online drafting service provider in the USA, I offer comprehensive services, including timely delivery and the expertise of an experienced draftsman. My service also includes checksheet responses to address plan examiner changes, ensuring that all requirements are met before construction. For this project, I had to also expedite a food permit from the Oregon Department of Agriculture.

Section Drawing of the Ropp Garage Addition as part of my drafting home plans process in designing every project.
At my drafting home plans online practice, I was thrilled to work with the Ropp family on their exciting garage addition project. The owner had a unique challenge – he needed to store his boat at his home, but the existing garage was too small to accommodate it. To solve this problem, I recommended demolishing the existing garage and building a new one that was taller and had wider doors.
For the Ropp Garage Addition, the owner decided to take on the task of expediting the building permit himself at Washington County Building Services in the city of Hillsboro, Oregon. I got to work on drafting home plans for the new garage addition in March 2015.
I ensured that the new garage addition would meet the owner’s needs while also complying with all building codes and regulations. I diligently ensured that every detail of the design was carefully considered, from the layout and size of the garage to the materials and finishes.
Once the drafting home plans were complete, I routed them to a Structural Engineer who calculated the seismic and wind speed forces, as well as the necessary beams for the new garage. With all the necessary approvals in place, construction began, and the new garage quickly began to take shape.
The finished Ropp Garage Addition was a stunning addition to the property. The new garage was spacious, well-lit, and provided ample space for the owner’s boat, as well as additional storage. The new garage was also aesthetically pleasing and complemented the existing home’s design, making it a seamless addition to the property.
Overall, I was thrilled to work with the Ropp family on this project and felt blessed to play a role in helping them achieve their goals. My drafting home plans free-lance practice is dedicated to providing clients with high-quality designs that meet their unique needs while also adhering to all building codes and regulations.
Home remodeling CAD design for The Shields Home Addition’ foundation and framing plans in Milwaukie, Oregon in 2015. The image showcases the detailed plans created through CAD design software to ensure precise and accurate construction.
The Shields Single-Story Home Addition: Home Remodeling CAD Design. I transformed the Shields home by opening up the kitchen, converting the existing bedroom #2 into a dining room, and adding a spacious 16’x38′ addition to the rear of the structure. The existing roof system was partially supported with a new glue-lam beam to achieve the desired changes. My services also included the creation of a new master bedroom with a walk-in closet, as well as a new bedroom #2 to replace the converted dining room. To ensure safety and compliance, I provided Lateral Bracing calculations for seismic and wind speed, while a Structural Engineer provided the glue-lam beam calculations and a local lumber yard provided roof truss calculations. With these pieces of documentation, I expedited the necessary permits online at the City of Milwaukie’s Building Department, making the project timeline a breeze for the Shields family. This project was completed in August 2015.


Home remodeling CAD design for the approved construction of ‘Hunter Home Renovation’ exterior elevations in Silverton, Oregon in 2015. The image showcases the detailed elevations created through CAD design software to ensure a beautiful and accurate renovation that matches the homeowner’s vision
The Hunter Home Renovation plans were created in the summer of 2015 using Home Remodeling CAD design. The project involved renovating the lower level, changing all the main level spaces, adding a front porch, and extending the existing rear deck. The owner expedited the permit process herself at the Silverton Oregon Building Department. The designed sheets included a site plan, floor plans showing existing and proposed areas, foundation plans with new and existing building components, framing plans, as well as sections and details.
If you need to hire my services don’t hesitate to get in touch.

Accurately drafted home renovation plans for the Hartman Single-Story Home Addition project in North East Portland, designed by professional home building plans service provider Luis F. Miramontes.
PROJECT DESCRIPTION: MRAA – 780 SQ FOOT ADDITION TO REAR OF HOUSE TO INCLUDE (2) BEDROOMS, FAMILY ROOM AND BATHROOM. ENLARGING EXISTING LAUNDRY ROOM AND RELOCATING BASEMENT STAIRS***SEPTIC DECOMMISSIONING REQUIRED BEFORE FOUNDATION.
PERMIT # 16-132382-000-00-RS
As a home renovation plan service provider, I had the pleasure of working on the Hartman Single-Story Home Addition project in North East Portland, Oregon. The project was permitted for construction in April 2016 and consisted of a single-story addition to an existing home. The drafting work included all the usual sheets required for construction, such as the Site Plan, Existing and Proposed Floor Plans, Foundation Plan, Framing Plan, Sections, Details, and Exterior Elevations.
In my role as a CAD Draftsman and Home Permit Expediter, I was responsible for designing and expediting the building permit for this project. The process involved working closely with the client to ensure that their vision was accurately captured in the drafting work, as well as coordinating with the Bureau of Development Services of the City of Portland to secure the necessary permits.
I take great pride in my work as a home renovation plan service provider and am committed to delivering detailed, accurate, and professional drafting work that meets the needs of my clients. The Hartman Single-Story Home Addition project is just one example of the many successful renovation projects I have had the privilege to work on.
Online home plan drafting for the approved construction of ‘Arechiga Duplex’ sections and details sheet in Longview, Washington in 2016. The image showcases the detailed plans created for Mr. Arechiga who happed to be in charge of expediting the building permit to ensure a timely construction.
PROJECT DESCRIPTION: MRAA – 780 SQ FOOT ADDITION TO REAR OF HOUSE TO INCLUDE (2) BEDROOMS, FAMILY ROOM AND BATHROOM. ENLARGING EXISTING LAUNDRY ROOM AND RELOCATING BASEMENT STAIRS***SEPTIC DECOMMISSIONING REQUIRED BEFORE FOUNDATION.
PERMIT # 16-132382-000-00-RS

As a home renovation plan service provider, I had the pleasure of working on the Hartman Single-Story Home Addition project in North East Portland, Oregon. The project was permitted for construction in April 2016 and consisted of a single-story addition to an existing home. The drafting work included all the usual sheets required for construction, such as the Site Plan, Existing and Proposed Floor Plans, Foundation Plan, Framing Plan, Sections, Details, and Exterior Elevations.
In my role as a CAD Draftsman and Home Permit Expediter, I was responsible for designing and expediting the building permit for this project. The process involved working closely with the client to ensure that their vision was accurately captured in the drafting work, as well as coordinating with the Bureau of Development Services of the City of Portland to secure the necessary permits.
I take great pride in my work as a home renovation plan service provider and am committed to delivering detailed, accurate, and professional drafting work that meets the needs of my clients. The Hartman Single-Story Home Addition project is just one example of the many successful renovation projects I have had the privilege to work on.

Home renovation plan service provider for the construction of the ‘Imlay Remodel and Addition’ in Gresham, Oregon in 2016. The image showcases the front and right exterior elevations portraying necessary pieces of information required building-code-wise in the approval of the project. Created by Luis F. Miramontes.
Looking to renovate your home in Gresham Oregon? I can provide you with the best home renovation plan service, online and conveniently. The Imlay Single-Story Home Addition with Duplex project is a testament to my commitment to providing detailed, accurate, and customizable home building plans.
My professional expertise as a home building plans draftsman delivers personalized and comprehensive home building plans services that cater to your specific needs. I understand that every home renovation project is unique, which is why I take the time to work closely with you to create a plan that meets your individual requirements.
I provide affordable home renovation plan services that also ensure timely home-building plan delivery, allowing you to start your construction project as soon as possible. The Imlay Single-Story Home Addition with Duplex project was permitted for construction in late 2016 by the City of Gresham Building Division. The plans included the usual drafting sheets such as Site Plan, Existing and Proposed Floor Plans, Foundation Plan, Framing Plan, Sections, Details, and Exterior Elevations.

Architectural CAD Drafting Services of Luis F. Miramontes. Front exterior elevation for the Lopez Home Renovation in 2017. Building permit expedited.
PROJECT DESCRIPTION: MRAA: NEW TWO STORY ADDITION FOR NEW FAMILY ROOM; THREE BEDROOM; NEW BATHROOM AND HALF BATH; RECONFIGURE EXISTING FIRST FLOOR LAYOUT***ELECTRICAL, MECHANICAL AND PLUMBING PERMITS TO BE OBTAINED SEPARATELY***
PERMIT # 2017-126824-000-00-RS.
Looking for high-quality CAD services for your home remodeling project in SE Portland, Oregon? Look no further, the Ramon Lopez Two-Story Addition and Main Home Renovation project, permitted for construction in 2017 by the Bureau of Development Services (BDS) of the City of Portland, is a prime example of my expertise in delivering detailed, accurate, and customizable home building plans.
As an expert CAD draftsman, I expedited the permit process for Mr. Lopez, ensuring timely approval. My plans included all the necessary drafting sheets, such as Site Plan, Existing and Proposed Floor Plans, Foundation Plan, Framing Plan, Sections, Details, and Exterior Elevations.
My comprehensive home building plans services are not only professional but also personalized to meet your specific needs. I take pride in providing affordable and timely home-building plan delivery, ensuring that you can begin your construction project as soon as possible. I respond to checksheets for changes requested by plan examiners, ensuring that your plans meet all necessary regulations, and requirements and get approved for construction.
Mr. Lopez was so satisfied with the services that he hired me again in 2022 for another project, which you can find in the 2022 year tab of my portfolio. As a local home building plans service provider in SE Portland, Oregon, I am committed to adding value to your home with my expert CAD services for home remodeling. Contact me today to learn more about my services and how I can help you bring your home renovation project to life.
West Coast Structural Engineering provided the calculations for this project.
Interior section view of the Fleskes Single-Story Addition designed by Luis F. Miramontes CAD Services for Home Remodeling in Beaverton, Oregon in 2017.
At my home renovation drafting service, I was proud to provide cad services for home remodeling to Tim Fleskes for his Single-Story Home Addition and Home Renovation in Beaverton Oregon. The project was permitted for construction in 2017 by the City of Beaverton Oregon Building Department, and Tim himself expedited the permit.
The scope of the project was extensive, including remodeling the existing home by building an access opening at an existing load-bearing wall that separated the existing kitchen and dining room, reconfiguring the existing master bath, and enlarging the existing master bedroom by adding a single-story addition.

I created detailed and accurate home building plans, including the Site Plan, Existing and Proposed Floor Plan, Foundation Plan, Framing Plan, Sections, Details, and Exterior Elevations. My customizable and professional home-building plans were personalized to meet Tim’s specific needs while remaining affordable.
As an online home building plans service provider, I offer comprehensive home building plans services for all types of renovation projects including responses to checksheets for plan examiners ensuring that the plans meet all necessary standards for approval. Contact me today for all your cad services for home remodeling needs.
PROJECT DESCRIPTION: MRAA: NEW TWO STORY ADDITION FOR NEW FAMILY ROOM; THREE BEDROOM; NEW BATHROOM AND HALF BATH; RECONFIGURE EXISTING FIRST FLOOR LAYOUT***ELECTRICAL, MECHANICAL AND PLUMBING PERMITS TO BE OBTAINED SEPARATELY***
PERMIT # 2017-126824-000-00-RS.
Looking for high-quality CAD services for your home remodeling project in SE Portland, Oregon? Look no further, the Ramon Lopez Two-Story Addition and Main Home Renovation project, permitted for construction in 2017 by the Bureau of Development Services (BDS) of the City of Portland, is a prime example of my expertise in delivering detailed, accurate, and customizable home building plans.
As an expert CAD draftsman, I expedited the permit process for Mr. Lopez, ensuring timely approval. My plans included all the necessary drafting sheets, such as Site Plan, Existing and Proposed Floor Plans, Foundation Plan, Framing Plan, Sections, Details, and Exterior Elevations.
My comprehensive home building plans services are not only professional but also personalized to meet your specific needs. I take pride in providing affordable and timely home-building plan delivery, ensuring that you can begin your construction project as soon as possible. I respond to checksheets for changes requested by plan examiners, ensuring that your plans meet all necessary regulations, and requirements and get approved for construction.
Mr. Lopez was so satisfied with the services that he hired me again in 2022 for another project, which you can find in the 2022 year tab of my portfolio. As a local home building plans service provider in SE Portland, Oregon, I am committed to adding value to your home with my expert CAD services for home remodeling. Contact me today to learn more about my services and how I can help you bring your home renovation project to life.
West Coast Structural Engineering provided the calculations for this project.

Deck draftsman drafting plans Oregon-this image showcases the detailed plans created by Luis F. Miramontes for the approved construction of the ‘Vondraceck Home Renovation and Deck Addition in Portland, 2017. The Vondracecks expedited the permit themselves; the image includes the exterior elevation sheet portraying a deck addition on the rear of the existing home and, a stairs head space projection adjustment-detail to ensure a safe stairs system in the home.
In my drafting service in Portland, Oregon, which I also offer in the states of Washington and California, I take pride in providing detailed and accurate home-building plans to homeowners like the Vondracecks. As an expert home building plans draftsman, I worked with the Vondracecks in 2017 to bring their stairs system up to code by providing custom-built plans that met Oregon’s building regulations for overhead distance clearance, which is the clearance in between the steps of the stairs and the projected ceiling.
As the Vondracecks also wanted to add a deck to the rear of their home, my drafting service was the perfect choice for their needs. The professional home-building plans I provided were customizable to the Vondracecks’ specific requirements. As an online building plans service provider, I ensured that the plans were tailored to meet the requirements of Clackamas County’s jurisdiction.
I offer a comprehensive range of services, including architectural CAD design services for new homes and architectural drafting services for home renovations. I also offer deck permit plans and deck drawings for permitting.
I stand behind you throughout the permitting process to provide the required changes that plan examiners ask for the approval of any building permit and to ensure that my clients’ needs are met at every stage of their project, especially throughout the permitting process.
PROJECT DESCRIPTION: MRAA: NEW TWO STORY ADDITION FOR NEW FAMILY ROOM; THREE BEDROOM; NEW BATHROOM AND HALF BATH; RECONFIGURE EXISTING FIRST FLOOR LAYOUT***ELECTRICAL, MECHANICAL AND PLUMBING PERMITS TO BE OBTAINED SEPARATELY***
PERMIT # 2017-126824-000-00-RS.
Looking for high-quality CAD services for your home remodeling project in SE Portland, Oregon? Look no further, the Ramon Lopez Two-Story Addition and Main Home Renovation project, permitted for construction in 2017 by the Bureau of Development Services (BDS) of the City of Portland, is a prime example of my expertise in delivering detailed, accurate, and customizable home building plans.
As an expert CAD draftsman, I expedited the permit process for Mr. Lopez, ensuring timely approval. My plans included all the necessary drafting sheets, such as Site Plan, Existing and Proposed Floor Plans, Foundation Plan, Framing Plan, Sections, Details, and Exterior Elevations.
My comprehensive home building plans services are not only professional but also personalized to meet your specific needs. I take pride in providing affordable and timely home-building plan delivery, ensuring that you can begin your construction project as soon as possible. I respond to checksheets for changes requested by plan examiners, ensuring that your plans meet all necessary regulations, and requirements and get approved for construction.
Mr. Lopez was so satisfied with the services that he hired me again in 2022 for another project, which you can find in the 2022 year tab of my portfolio. As a local home building plans service provider in SE Portland, Oregon, I am committed to adding value to your home with my expert CAD services for home remodeling. Contact me today to learn more about my services and how I can help you bring your home renovation project to life.
West Coast Structural Engineering provided the calculations for this project.

Image of the Quiroz Home Addition Proposed Main Floor Plan in Aloha, Oregon, USA. The plan shows existing and proposed spaces, the permit for this project was expedited by the homeowners. Plans were designed by home renovation expert designer Luis F. Miramontes in 2018.
Welcome to my home renovation drafting service! I specialize in providing detailed and accurate home building plans for clients in Oregon, Washington, and California USA, these are the jurisdictions where I’ve pulled more permits and am familiar with building codes. My online home plans draftsman services are customizable to fit your unique needs, I will work with you to create personalized plans that meet your budget and timeline.
One of my projects for 2018 was the “Quiroz Home Addition” in Aloha, Oregon. This project involved adding a 19-foot by 20 feet single-story home addition attached to the rear of the existing house. I drafted the necessary plans for permits in Washington County Oregon. I worked closely with the Quiroz family to ensure that the plans met all Washington County Building Department regulations and requirements for the project.
I pride myself on my affordable home building plans services and timely delivery. Whether you need drafting plans for a single-story home addition, two-story home additions, ADUs, dormers, deck permits, a full home renovation, or plans for a new home, my drafting services in Oregon, USA, are the perfect solution. I also offer my drafting services in Aloha, Washington County, Clackamas County, Gresham, Cornelius, Hillsboro, Lake Oswego, Oregon City, Milwaukie, Salem, Astoria, Vancouver, WA, Clark County WA, and any other areas within Oregon; the states of Washington, and California.
Image of Existing and Proposed Basement/Foundation Plan for the First Street Remodel in Gresham Oregon, 2018 by Luis F. Miramontes Home Renovation Expert Designer in Oregon, USA. The general contractor expedited the permit
The First Street Remodel” in Gresham, Oregon in 2018 is a project that involved the conversion of an unfinished basement into livable space, refurnishing the main floor, and converting the attic into a functional living area. My expertise as a home renovation expert designer in Oregon, USA, allowed me to provide the contractor with customizable and professional home building plans for permitting.


Outsourced CAD drafting services by Luis F. Miramontes designed the Woodstock Home Renovation’s NE Portland basement foundation plan in 2018
PROJECT DESCRIPTION: MRAA – CONVERT ATTIC TO LIVING SPACE WITH 2 BEDROOMS, 1 BATHROOM, 2 DORMER ADDITIONS. REMODEL AND RECONFIGURE MAIN FLOOR.**PLUMBING, ELECTRICAL, MECHANICAL PERMITS SEPARATE.**
PERMIT # 2017-195610-000-00-RS
The Woodstock Project House was permitted for construction in 2018 by the Bureau of Development Services of the City of Portland and was a fixer-upper that required extensive remodeling and reconfiguration of the main floor, as well as the conversion of the attic into living space with two bedrooms, one bathroom, and two dormer additions.
The owners of the property were keen to expedite the permit, and I worked closely with them to respond to checksheets requested by plan examiners to ensure the approval of the project. To meet the usual engineering requirements, I also routed the plans to a structural engineer for calculations.
The drafting sheets I provided for this project included Site Plan, Existing and Proposed Floor Plans, Foundation Plan, Framing Plan, Sections, Details, and Exterior Elevations. At my CAD services for home remodeling, I also understand the importance of timely home-building plan delivery, which is why I work diligently to provide my clients with drafts that are ready for submission to the relevant authorities.

In 2019, Luis F. Miramontes’ Architectural CAD Drafting Services designed Dindral Remodel’s building plans
PROJECT DESCRIPTION: ADDITION AND ALTERATION OF SINGLE FAMILY HOME 2 STORY WITH NON-HABITABLE BASEMENT AND ATTIC; NEW FOUNDATION, NEW WALLS, ADU OVER GARAGE. 6 BATHROOMS.
PERMIT # 2019-137882-000-00-RS
As a professional and experienced drafting service provider, I had the pleasure of working with Mr. Mo Dindral on his home addition project in SW Portland, Oregon. The project scope included the addition and alteration of Mr. Dindral’s single-family home to two-story with a non-habitable basement and attic, a new foundation, ADU over the garage, and six bathrooms. Mr. Dindral contacted me in late 2018, seeking assistance in creating detailed and accurate home-building plans to communicate his vision for the project to the team of plan examiners of the Bureau of Development Services (BDS) of the City of Portland.
After discussing the project in detail via Skype and email, I produced a series of plans including the Site Plan, Proposed Main Floor and Proposed Upper Floor Plans (with existing and new areas), Exterior Elevations, Sections, Details, Proposed Basement/Foundation Plan, Proposed Upper Floor Plan, Proposed Unfinished Attic Floor Plan, and Roof Framing Plan. With the plans in place, Mr. Dindral was able to expedite the permit process, and I provided the necessary changes to meet the requirements of third parties, such as a structural engineer, civil engineer, and licensed arborist.
As an online home plans draftsman, I offer customizable and personalized home-building plans to suit your unique needs. My services are professional, and affordable, providing comprehensive home-building plan services that are delivered in a timely manner.
I specialize in single-story and two-story home additions, ADUs, dormers, deck permit plans, home renovations, architectural CAD design, and drafting services for permitting, meaning that I stand behind you throughout the permitting process until your project plans get approved for construction.
I serve the greater Portland area, including Aloha, Gresham, Washington County, Clackamas County, Hillsboro, Beaverton, Cornelius, Lake Oswego, Milwaukie, Clark County, Vancouver, and all Oregon territories. I also serve the states of California and Washington. Whether you’re a homeowner, contractor, or a homebuilder, my drafting services can help bring your vision to life. So, if you’re looking for a house plan designer, residential drafting services, or home addition plans contact me to discuss your project.
A section image of the Ugrin Family Farm House in Wolf Creek, Oregon, the project was completed in 2019. Section “A” shows the various components of the building assembly. Prior to initializing the drafting service, and to make me aware of the remarks of their project, the Ugrins provided me with hand-drawn sketches visualizing their needs for their home building plans and ensuring the accuracy of the plan’s outcome.
I had the pleasure of working on the Mazer ADU project in Vancouver Washington in 2019. I was responsible for drafting detailed and accurate home-building plans for an attached-to-existing-home ADU (Accessory Dwelling Unit).

During the drafting process, I took great care in applying lateral bracing for seismic and wind speed, per Washington State Building Code 2015 Prescriptive Provisions. This ensured a safe and stable structure against wind and earth forces. Also, the wall separating both dwelling units had to be reinforced to meet fire rating standards.
As an online home plans draftsman for Vancouver Washington and surrounding areas, I offer customizable, professional, and personalized home-building plans at an affordable price. I provide comprehensive residential drafting services, including home addition plans, addition floor plans, and plan additions for homes and ADUs.

Cross section view of the Mazer ADU framing plan in Vancouver Washington, 2019. The detailed drafting home building plan sheet #4 showcases the roof truss layout, wall types, notes, callout references, and other structural assembly components. The permit was expedited by the homeowner/contractor.
I had the pleasure of working on the Mazer ADU project in Vancouver Washington in 2019. I was responsible for drafting detailed and accurate home-building plans for an attached-to-existing-home ADU (Accessory Dwelling Unit).
During the drafting process, I took great care in applying lateral bracing for seismic and wind speed, per Washington State Building Code 2015 Prescriptive Provisions. This ensured a safe and stable structure against wind and earth forces. Also, the wall separating both dwelling units had to be reinforced to meet fire rating standards.
As an online home plans draftsman for Vancouver Washington and surrounding areas, I offer customizable, professional, and personalized home-building plans at an affordable price. I provide comprehensive residential drafting services, including home addition plans, addition floor plans, and plan additions for homes and ADUs.

Residential Building Architects Oregon. Site Plan sheet showing the proposed new full bath built in an existing basement of a residential property in Portland, Oregon. The permit for this project was expedited by the homeowner/contractor and designed by Luis F. Miramontes. The drafting service was provided online.
I am thrilled to share my experience working on the Olson garage remodel and conversion project in Clatskanie, Oregon in 2020. As an online architectural CAD drafter, I was approached by the Olsons who were looking to convert their existing two-car garage into a Grand Room.
Although I do not hold the title of residential building architect in Oregon, my years of practice in architectural CAD drafting and design provided me with the necessary expertise and knowledge to assist my clients in obtaining permits for all kinds of home renovations. For this project, I worked closely with the homeowners to draft home-building plans that would meet their requirements and comply with all relevant regulations.
In addition to drafting plans for the conversion of the garage into a Grand Room, I also helped the homeowners obtain permits for other home renovations, including building plans for additions, dormers, home renovations, ADUs, etc., etc. As part of my architectural drafting services, I provided the homeowners with detailed drawings and specifications required for permit approval.
I take great pride in my work as an architectural drafter, and I strive to provide my clients with high-quality drafting services that meet their needs and exceed their expectations. If you are looking for architectural design and drafting services in Clatskanie, Oregon, or the surrounding areas, I would be happy to assist
Residential Building Architects Oregon. Cross-Section sheet showcasing the Olson garage remodel and conversion into a Grand Room, expedited by the homeowner for permit approval. Located in Clatskanie, Oregon,
I am thrilled to share my experience working on the Olson garage remodel and conversion project in Clatskanie, Oregon in 2020. As an online architectural CAD drafter, I was approached by the Olsons who were looking to convert their existing two-car garage into a Grand Room.

Although I do not hold the title of residential building architect in Oregon, my years of practice in architectural CAD drafting and design provided me with the necessary expertise and knowledge to assist my clients in obtaining permits for all kinds of home renovations. For this project, I worked closely with the homeowners to draft home-building plans that would meet their requirements and comply with all relevant regulations.
In addition to drafting plans for the conversion of the garage into a Grand Room, I also helped the homeowners obtain permits for other home renovations, including building plans for additions, dormers, home renovations, ADUs, etc., etc. As part of my architectural drafting services, I provided the homeowners with detailed drawings and specifications required for permit approval.
I take great pride in my work as an architectural drafter, and I strive to provide my clients with high-quality drafting services that meet their needs and exceed their expectations. If you are looking for architectural design and drafting services in Clatskanie, Oregon, or the surrounding areas, I would be happy to assist

Skilled Residential Building Architects in Oregon- Foundation Plan sheet showcasing the Pickens single-story home addition project in Colton, Oregon. The plan highlights the foundation design for the new addition to the existing single-story home. The homeowner expedited the permit. This image provides a clear overview of the foundation layout and design plans, showcasing the attention to detail that went into the project.
As an experienced Online Architectural CAD Drafter, Colton Oregon is another jurisdiction I can assist with my drafting services, In 2020, I was hired to help the Pickens family with their home addition project. The scope of the project was to add two new bedrooms, a single-car garage, a family room, and a mud room/hobby room to their single-story home structure.
Even though I don’t hold the title of Residential Building Architect in Oregon, I possess the necessary expertise, knowledge, and years of practice to assist my clients in obtaining permits for all kinds of home renovations, including single and two-story home additions, ADUs, dormers, bathroom and all kinds of plans for permits in Clackamas Oregon.
With my architectural CAD drafting services, I was able to produce accurate and detailed building plans for the Pickens’ home addition project, which helped them expedite the permit process. I pride myself on delivering results that are comparable to Residential Building Architects in Oregon but at a more affordable price point.
Whether you need architectural design and drafting services in Clackamas or Colton, I can help. As a skilled architectural drafter, I can assist you with all of your home renovation needs, from drafting building plans to obtaining permits online. Contact me today to learn more about my building design drafting services in Clackamas and beyond.

Architectural CAD Drafter Services – Baseel ADU Site Plan Image. The image displays a detailed CAD-generated Site Plan for the Baseel ADU (Accessory Dwelling Unit) project, created by architectural CAD drafter Luis F. Miramontes. The project plans were submitted for permit approval to Milwaukie, Oregon. The plans package include 2D and 3D renderings of the new structure, as well as precise measurements and specifications for the construction. The CAD design allows for accurate visualization of the final result and effective communication with contractors and builders.
I provided Architectural CAD Drafter services for the Baseel ADU project, which was designed in late 2021 and approved for construction by The City of Milwaukie Oregon in February 2022. I created the essential sheets for permitting and the project owner expedited the building permit.
To accommodate client requests, my services also included plan changes. The ADU plans were designed to meet lateral bracing requirements for seismic and wind speed, adhering to the 2021 Oregon Residential Specialty Code (2021 O.R.S.C.). The plans package included designing the standard sheets, such as the site plan, floor plans showing existing and proposed spaces, foundation plan, framing plan, lateral bracing details, sections, and details.
If you need assistance with your project, don’t hesitate to get in touch.
A photo of Mr. Poindexter single-story home addition floor plans (Existing and Proposed). The project is located in Beavercreek, Oregon. Designed by Luis F. Miramontes skilled CAD draftsman. The project relocates the kitchen to the new addition area and creates a new office also within the new addition, the old kitchen space enlarges the new foyer and, the main house receives a new front porch.
As a CAD draftsman specializing in home addition drafting services, I am excited to share my experience working on a project for Mr. Poindexter in Beavercreek, Oregon. The “Tonya CT Addition” involved designing and drafting a single-story home addition to the Poindexter property in 2021.
The project began with a thorough consultation with Mr. Poindexter to determine his needs and preferences for the home addition. Through careful discussions and measurements, I created a detailed site plan that captured the property’s boundaries, setbacks, and existing features.

Using the site plan, I developed an accurate existing floor plan of the home, including all doors, windows, and structural elements. Then, I worked with Mr. Poindexter to develop a proposed floor plan for the addition, incorporating his specific requirements and desires.
With the proposed floor plan approved, I created a detailed foundation plan, framing plan, and sections that ensured the addition would be structurally sound and met all necessary building codes and regulations. Throughout the drafting process, I paid close attention to the details, creating accurate and precise details of all building components, such as windows, doors, and roofing.
In the end, I was able to provide Mr. Poindexter with a comprehensive set of drafting sheets, including the site plan, existing floor plan, proposed floor plan, foundation plan, framing plan, sections, and details. These sheets served as an essential resource for Mr. Poindexter and his construction team, providing them with all the information they needed to complete the project successfully.
I take great pride in delivering high-quality drafting services for my clients, and this project for Mr. Poindexter was no exception. As a CAD draftsman, I am committed to providing accurate and detailed plans that meet my client’s unique needs. It was a pleasure to have been able to work on this project in Beavercreek, Oregon, and I look forward to serving more clients in the future.

Existing and proposed floor plans for the Aguilar ADU. Professional Architectural contractor for California home plan projects.
As a professional architectural contractor in California, I am proud to present an exceptional ADU project located in Santa Barbara. This project involved the conversion of Mr. Aguilar’s garage into a stunning Accessory Dwelling Unit.
Mr. Aguilar was looking for a professional architectural contractor in California and decided to hire a CAD drafter to design the plans online I was happy to help and committed to delivering a functional and aesthetically pleasing space that complemented the existing property.
My goal was to bring Mr. Aguilar’s vision to life by creating a comfortable and modern space that would provide additional housing options for Mr. Aguilar’s family while maximizing the existing property’s potential.
The existing garage was transformed into a functional ADU featuring a spacious living area, a full kitchen, and a modern bathroom.
The California Title 24 energy requirements made this ADU an energy-efficient design. The unit features state-of-the-art insulation, high-efficiency appliances, and a solar power system, which reduces energy consumption and saves on utility bills.
In terms of aesthetics, the ADU blends seamlessly with the existing property, featuring a modern design with a neutral color scheme and natural materials such as wood and stone. The outdoor living area provides ample space for relaxation and entertainment, making it the perfect place to unwind and enjoy the California sun.
Throughout the construction process, I worked closely with Mr. Aguilar to ensure that his vision was brought to life. I communicated regularly with him to keep him updated on the progress of the project, and I was always available to answer any questions or concerns he had.
Overall, this ADU project is a testament to the expertise and creativity of a professional architectural contractor in California. By converting an existing garage into a functional ADU, I was able to provide Mr. Aguilar with an additional source of income while creating a beautiful and functional space that enhances the value of his property. I’m proud to have played a role in bringing this project to life and am confident that it will serve as a source of inspiration for future ADU projects in Santa Barbara.

Floor plan sheet for the New Moore’s Home, created by professional home building plans service provider Luis F. Miramontes.
Looking for a reliable home building plans service provider in Oregon? Look no further! As an expert draftsman in the field of residential architecture, I pride myself on providing comprehensive and customizable home-building plan services. My personalized approach ensures that all plans are detailed, accurate, and meet the necessary codes and regulations.
One of my recent projects was the Moore Residence, where I worked closely with the General Contractor to ensure that their vision was realized. My professional drafting services provided the necessary plans for permitting, including a Site Plan, Floor Plan, Foundation Plan, Framing Plan, Sections, and Details. All plans were delivered in a timely manner to expedite the building permit process. West Coast Structural Engineering provided the calculations for this project.
I understand that affordability is an important factor in any home project, which is why I strive to offer affordable home-building plan services without sacrificing quality. As a local home-building plans service provider, I am dedicated to helping you bring your home-building dreams to life. Contact me today to discuss how I can help you with your next project.
Section “A” drawing sheet of Lopez Home Renovation Project designed by Luis F. Miramontes, professional and expert home building plans service provider.
PROJECT DESCRIPTION: SINGLE PDF – ADDITION: NEW 440SF ATTACHED SHOP AT BACK OF HOME AND NEW COVERED FRONT PORCH. KITCHEN FIREPLACE TO BE REMOVED. NEW ROOFING ON MAIN LEVEL. *** PT, MT, ET SEPARATE *** SEE 21-098931-HS
PERMIT # 2022-101317-000-00-RS

In 2017, I was hired by Mr. Lopez to provide detailed and accurate home-building plans for a two-story home addition for his SE Portland residence. Fast forward five years, in 2022, Mr. Lopez urgently needed a draftsman to help with a home renovation project after receiving a “stop work order” from a city inspector. As a local home building plans service provider, I quickly got to work on drafting a whole set of customizable and personalized house renovation plans. I also coordinated with licensed arborists from PDX Tree Services and West Coast Structural Engineering to ensure that all the plans complied with local regulations.
The comprehensive home building plans services that I provided included coordinating with the Bureau of Development Services (BDS) of the City of Portland via DevHub to obtain the necessary permits, which were approved in June 2022. Throughout the whole process, I worked closely with Mr. Lopez and his team to deliver timely and professional home-building plans that met their exact needs. As an expert home building plans draftsman, I am dedicated to providing affordable and high-quality drafting services to clients both locally and remotely.

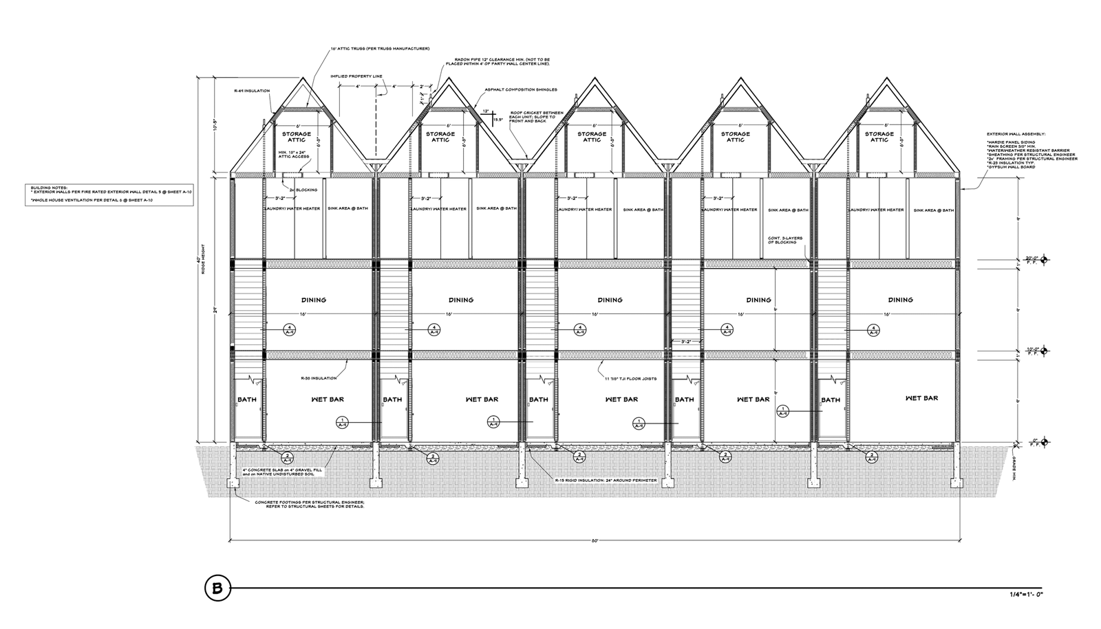
Home building plans service provider: Cross Section “A” of 26th Ave Townhomes in SE Alberta St. Portland Oregon. Designed Luis F. Miramontes, showcasing his detailed and accurate drafting work. The redline-clouded markings indicate plan-changes requested by project-owners, contractors and plan examiners as the plans are being produced.
PROJECT DESCRIPTION: SINGLE PDF: NEW 1 OF 5 TOWNHOUSE UNITS ON SINGLE LOT/ 4-STORY/ NO GARAGE/ FLAT LOT/ COMPLEX W/ 164151/55/59/63 RS AND 22-164166 SD***TRADE ET PT AND MT SEPARATE******DFS ROOF TRUSSES******NFPA-13D FIRE SPRINKLERS REQUIRED PER 4-STORY CODE GUIDE**
PERMIT # 2022-164147-000-00-RS
The 26th Ave Townhomes project, nestled in the vibrant neighborhood of SE Alberta St. in Portland, Oregon, stands as a testament to my meticulous architectural design.
As I look at Section “A” image, I see a project that has continuously evolved over time. The redline-clouded markings on the plans are a clear reflection of the adaptations and refinements suggested by project owners, contractors, and plan examiners during the production phase. This collaborative process ensures that the final plans are a refined and perfected representation of our collective vision.
However, there is one hurdle to clear. The plans for this project currently await approval. This delay is due to pending changes in the property’s address, tax account, and boundaries. Despite this, I remain confident that once these changes are resolved, our project will move forward, showcasing the blend of art and functionality that defines my approach to architectural design.
Project Description:
The Lot 8 Townhome Project represents a thoughtfully planned infill development located at the intersection of N Gantenbein Avenue and N Vancouver Avenue in Portland, Oregon. Situated on a corner lot, the proposal introduces five attached townhome units, designed to balance density, efficiency, and neighborhood compatibility.
From the outset, the project’s focus was on maximizing land use while maintaining compliance with Portland’s zoning and development standards. The site plan emphasizes a compact footprint, shared access, and pedestrian-friendly frontages, aligning with the city’s vision for sustainable urban growth. While no off-street parking is provided, the development relies on available street parking, consistent with the area’s urban context and walkable, transit-accessible environment.
PERMIT # 2024-011329-000-00-RS
This project reflects my approach to residential design: merging practical code-compliance with clear, communicative drawings that support smooth permitting and future construction. The clean layout, efficient lot use, and strategic orientation of units demonstrate how small urban lots can successfully accommodate quality multifamily housing.
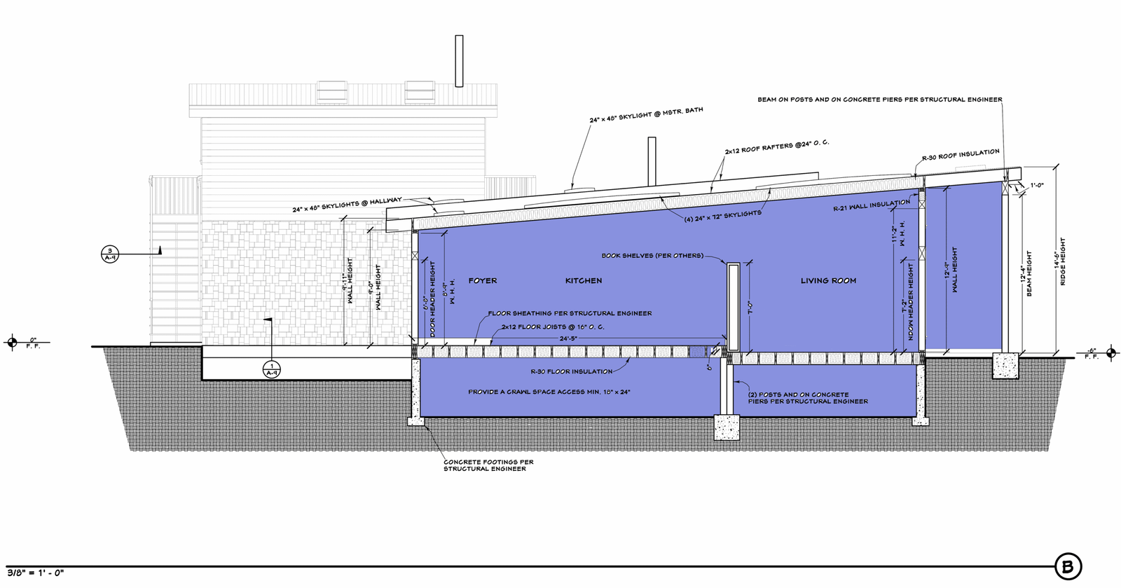
Project Description:
Hill Residence – Clackamas County, Oregon (2023)
This architectural section cut represents the Hill Residence, a 2023 custom single-family home designed for Mr. Hill in Clackamas County, Oregon. Influenced by Frank Lloyd Wright’s architectural philosophy, the design emphasizes spatial continuity, proportional harmony, and a strong connection to the site, all documented through clear and coordinated residential drafting.
The construction document set was developed to facilitate an efficient residential permit review and included a site plan, first- and second-level floor plans, exterior elevations, foundation plan, upper floor framing plan, roof framing plan, architectural sections, and construction details. Structural engineering was prepared by a third-party consultant and coordinated with the architectural drawings.
The homeowner worked directly with Clackamas County to expedite the permit review process, supported by a complete, internally consistent plans set intended to minimize review comments and resubmittals. This project demonstrates a permit-focused drafting approach emphasizing clarity, coordination, and compliance with local residential code requirements.
The image shown is a section cut from the approved plan set, illustrating coordinated interior construction details and clearly conveying structural and architectural intent for permit review and construction.
Interior Remodel — Portland, Oregon (2023)
This interior remodel project received BDS Red Seal approval, confirming official permit approval of the construction documents for 9940 N Ivanhoe Street, Portland, Oregon. The approved drawings verify full compliance with local building codes and residential permitting standards as administered by the Portland Bureau of Development Services (BDS).
The scope of work included structural adjustments to the existing residence to accommodate the incorporation of a new beam within the kitchen area, enabling an updated and more open interior layout. The plans set documented load path considerations, framing modifications, and beam integration within the existing structure, ensuring code-compliant support of altered conditions.
PERMIT #
2023-040472-000-00-RS
🤝 Ready to Collaborate?
If you’re planning a residential project, I can help.
Next, we’ll review your scope and jurisdiction.
Then, I’ll prepare clean, permit-ready plans.
