2025 Residential Drafting Portfolio – Oregon & Washington
This portfolio features permit-approved residential drafting projects completed in 2025,
including home remodels, new garage additions, and ADU conversions.
All construction documents were prepared by Luis F. Miramontes and approved through the
City of Portland – Bureau of Development Services (BDS)
or relevant county jurisdictions.
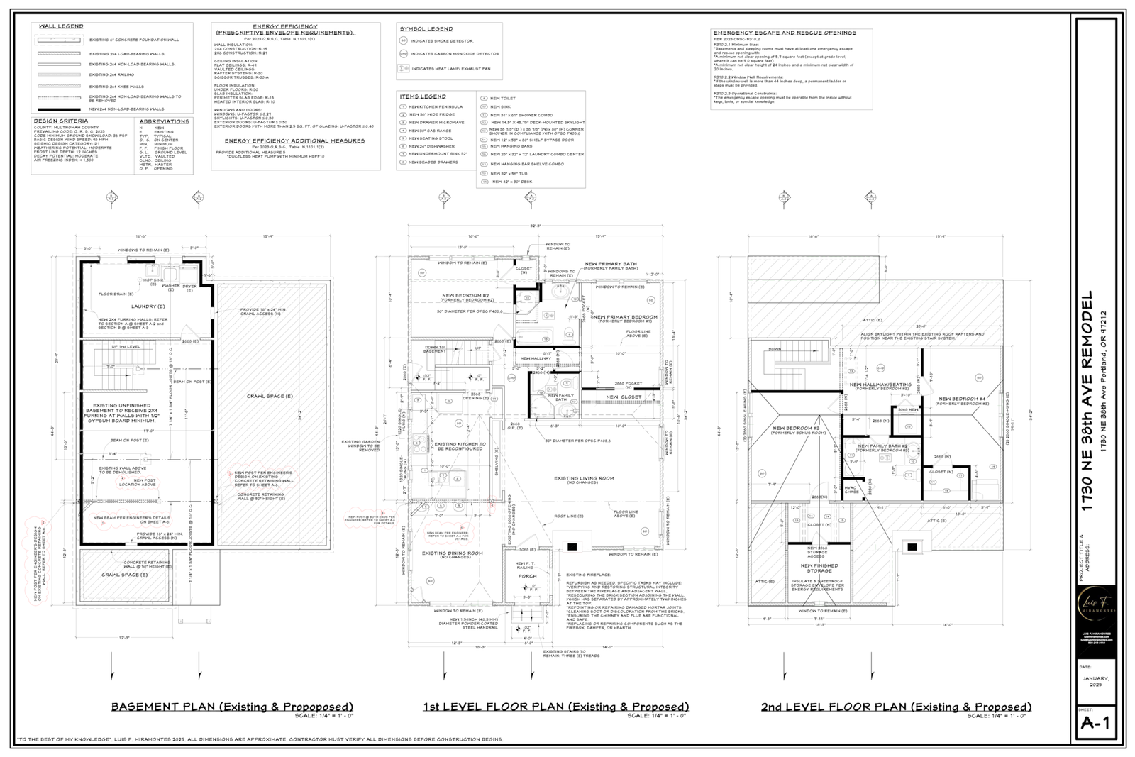
1730 NE 38th Ave Remodel – Portland, OR
Project Overview:
Single-family home remodel including basement wall furring/insulation, main floor kitchen reconfiguration, primary bedroom and bath creation, second-level bedroom addition, hallway/bonus room conversion, and skylight installation. Final layout: 4 bedrooms, 3 bathrooms. ET, PT, and MT permits handled separately.
Scope of Work:
Complete permit-ready construction documents including site plan, floor plans, foundation layout, framing plan, building sections, and interior/exterior elevations. Prepared for contractor bidding and permitting submission.
Jurisdiction:
City of Portland – Bureau of Development Services (BDS)
New Garage with Bonus Room & Elevator – Portland, OR
Project Overview:
Construction of an attached garage with a bonus room above and a new elevator for accessibility. Preserves neighborhood character and follows all zoning and structural requirements.
Scope of Work:
Complete permit-ready construction documents including site plan, floor plans, foundation and framing layouts, structural sections, and elevations.
Jurisdiction:
Urban Unincorporated Washington County
Detached Garage to ADU Conversion – Oregon City, OR
Project Overview:
Conversion of a detached two-car garage into a 471 sq. ft. ADU with self-contained kitchen, bathroom, sleeping area, and mechanical room. Complies with ORSC 2023 code while maintaining neighborhood compatibility.
Scope of Work:
Complete permit-ready construction documents including site plan, floor plans, foundation and framing layouts, building sections, and exterior elevations.
Jurisdiction:
Oregon City Building Permits



