2024 Residential Drafting Portfolio – Oregon & Washington
This portfolio features permit-approved residential drafting projects completed in 2024,
including basement renovations, pantry-to-bath conversions, and new two-story custom homes.
All construction documents were prepared by Luis F. Miramontes and approved through the
City of Portland – Bureau of Development Services (BDS)
or relevant county jurisdictions.
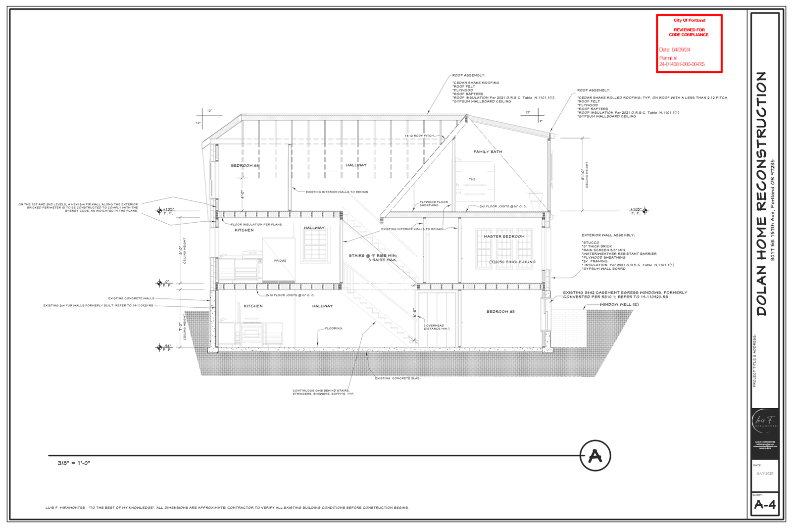
Dolan Residence Basement Renovation – Portland, OR
Project Overview:
Repair and renovation due to fire and water damage. Reconfigured the basement to include a wetbar, remodeled bathroom, and converted a bedroom into a studio.
Restored to the original footprint with no added livable square footage. ET, MT, and PT permits handled separately.
Scope of Work:
Complete permit-ready construction documents including site plan, dimensioned floor plans, foundation layout,
framing plan, building sections, and interior/exterior elevations. Prepared for contractor bidding and permitting submission.
Jurisdiction:
City of Portland – Bureau of Development Services (BDS)
Pantry-to-Half Bath Conversion & Bathroom Expansion – Portland, OR
Project Overview:
Converted pantry into a new half bath, enlarged second-level family bath, and added an 8-ft perimeter fence per Portland Zoning Code 33.130.270. Complete remodel documentation for permitting.
Scope of Work:
Complete permit-ready construction documents including floor plans, foundation layout, framing plan, building sections, and exterior elevations.
Jurisdiction:
City of Portland – Bureau of Development Services (BDS)
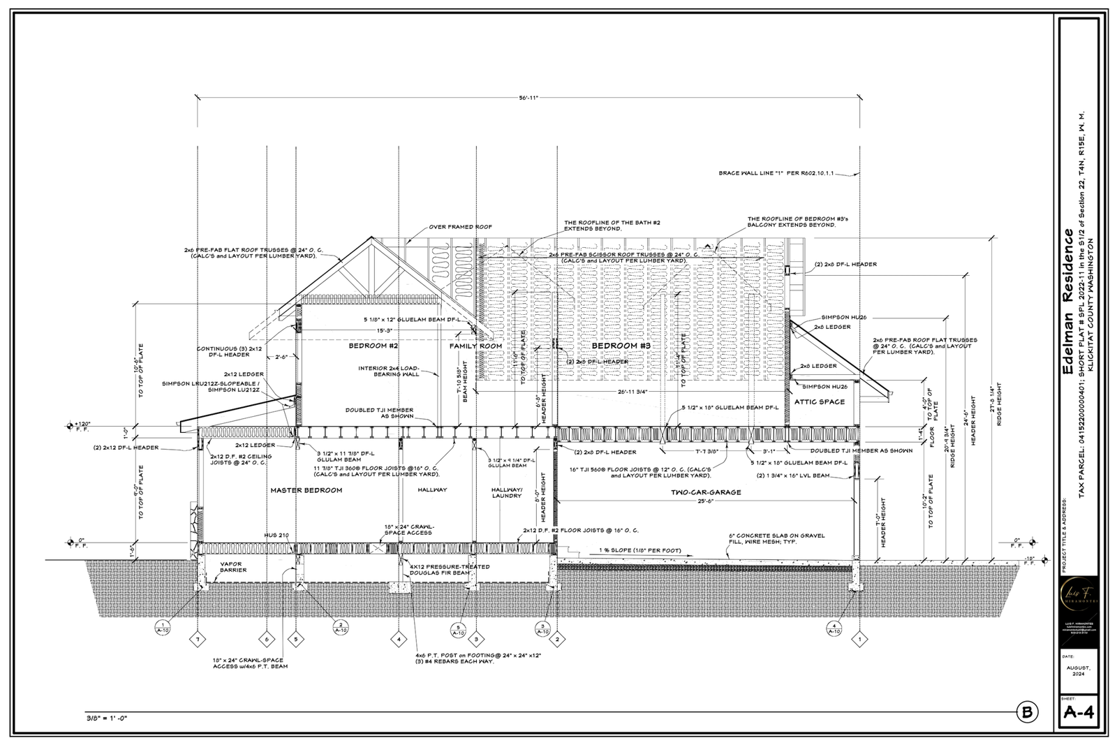
Edelman Residence – Two-Story New Home, Klickitat County, WA
Project Overview:
New two-story single-family residence totaling approximately 4,196 sq. ft. Designed using IRC prescriptive lateral bracing for seismic and wind compliance.
Fully coordinated architectural and structural drawings prepared for residential permitting.
Scope of Work:
Complete permit-ready construction documents including site plan, floor plans, foundation layout, framing plan, structural sections, and exterior elevations.
Jurisdiction:
Klickitat County Building Department



